Lokal na wynajem Gdańsk, Młyniska, plac Porozumienia Gdańskiego
offer image 5 093  zł
Symbol oferty : YON-LW-866
building type icon
Rodzaj budynku : Lokal
floor icon
Liczba pięter w budynku : 4
area icon
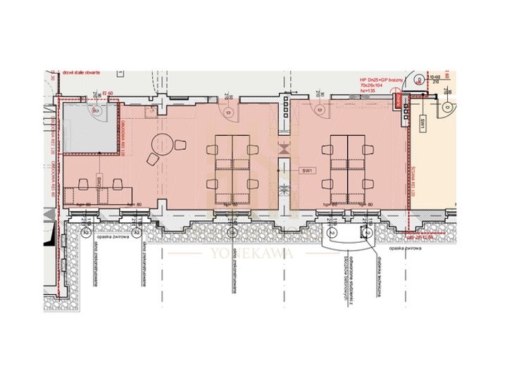
Powierzchnia: 80 m²
X
Opis Nieruchomości

KAMERALNY OBIEKT BIUROWY NA HISTORYCZNYCH TERENACH 

Unikalny, zabytkowy budynek zlokalizowany na terenach gdańskiego Młodego Miasta, na terenach postoczniowych. Dogodna lokalizacja, sąsiadująca z Europejskim Centrum Solidarności w odległości 900 m od dworca Gdańsk – Główny (PKP/SKM/PKM). Budynek przeszedł gruntowną modernizację, zakończoną w 2020 roku.

Budynek wyposażony jest w nowoczesne systemy wymiany powietrza. Układ funkcjonalny biura dostosowany do potrzeb najemcy.

  • dostęp 24/7
  • szybkie łącze światłowodowe
  • dogodne warunki parkingowe na terenie inwestycji
  • aneksy kuchenne na powierzchni i w częściach wspólnych
  • łazienki z prysznicem na każdym piętrze
  • taras widokowy
Powierzchnie konferencyjne / co-workingowe dostępne dla Najemców budynku.

Warunki najmu:
  • czynsz 64,00 PLN/m2 (zależnie od długości umowy najmu)
  • współczynnik pow. wspólnej 10,00% (pow. net 72,35 m2 / pow. gross 79,58 m2)
  • opłata eksploatacyjna (service charge) 24,36 PLN /m
  • media według wskazania liczników
  • miejsca parkingowe w cenie 267 PLN /m-ce
*wszystkie stawki netto + VAT

Zapraszam po więcej szczegółów oraz na prezentację obiektu w dogodnym terminie.
Podane w zestawieniu stawki czynszu nie stanowią oferty, są jedynie propozycją cenową.
Oferta dedykowana pod potrzeby najemcy przygotowywana indywidualnie.

OBSŁUGA BEZPROWIZYJNA
WSPIERAM TRÓJMIEJSKICH PRZEDSIĘBIORCÓW W WYBORZE, ANALIZIE ORAZ NEGOCJACJACH WARUNKÓW NAJMU NIERUCHOMOŚCI KOMERCYJNYCH OD 2015 ROKU. DOSTARCZĘ OPTYMALNE ROZWIĄZANIE DLA KAŻDEGO BIZNESU DOSTOSOWANE DO INDYWIDUALNYCH POTRZEB. ELASTYCZNE ROZWIĄZANIA ORAZ TRADYCYJNY TERMINOWY NAJEM W KAMERALNYCH OBIEKTACH I PARKACH BIZNESOWYCH/LOGISTYCZNYCH.

PROJEKTY PRZESTRZENNE / WYPOSAŻENIE BIUROWE / DOSTOSOWANIE UKŁADU / ZMIANA LOKALIZACJI
 

  • Symbol oferty: YON-LW-866
  • Powierzchnia: 79,58 m²
  • Powierzchnia użytkowa [m2]: 79,58 m²
  • Rodzaj budynku: biurowiec
  • Standard:
  • Opłaty wg liczników: CO, prąd, woda
  • Piętro: parter
  • Liczba pięter w budynku: 4
  • Stan lokalu: do wprowadzenia
  • Okna: drewniane
  • Instalacje: dobre
  • Rodzaj lokalu: jednopoziomowy
  • Przeznaczenie lokalu: biurowy
  • Gaz:
  • Ogrzewanie: centralne
  • Odległość do komunikacji publicznej [m]: 130 m
  • Winda: tak
  • Usytuowanie: jednostronne
  • Przystosowania dla niepełnosprawnych: tak
  • Możliwość parkowania: tak

Masz pytania

agent
Filip Chrzanowski Dyrektor Działu Nieruchomości Komercyjnych
Nota prawna

Opis oferty zawarty na stronie internetowej sporządzany jest na podstawie oględzin nieruchomości oraz informacji uzyskanych od właściciela, może podlegać aktualizacji i nie stanowi oferty określonej w art. 66 i następnych K.C

heading iconPodobne oferty

heading iconKontakt

Proszę wypełnić to pole
Proszę wypełnić to pole
Proszę wypełnić to pole
Proszę wypełnić to pole