Lokal na wynajem Gdańsk, Wrzeszcz, Aleja Grunwaldzka
offer image 54 796  zł
Symbol oferty : YON-LW-826
building type icon
Rodzaj budynku : Lokal
floor icon
Liczba pięter w budynku : 19
area icon
Powierzchnia: 884 m²
X
Opis Nieruchomości

BIURO W PRESTIŻOWEJ LOKALIZACJI W CENTRUM WRZESZCZA
 
Obiekt usytuowany bezpośrednio przy węźle komunikacyjnym Gdańsk - Wrzeszcz, w zasięgu wszystkich środków komunikacji publicznej operujących w okolicy (TRAM, BUS, SKM, PKP, PKM). Dodatkową zaletą jest sąsiedztwo trzech centrów handlowych t.j. Galeria Bałtycka oraz dostęp do szerokiego zakresu usług uzupełniających.

Budynek wyposażony jest w nowoczesne systemy klimatyzacji i wentylacji.

  • infrastruktura dla rowerzystów
  • dwupoziomowa hala garażowa
  • podłogi podniesione/techniczne (floor boxy) zapewniające elastyczność pracy
  • łącze światłowodowe
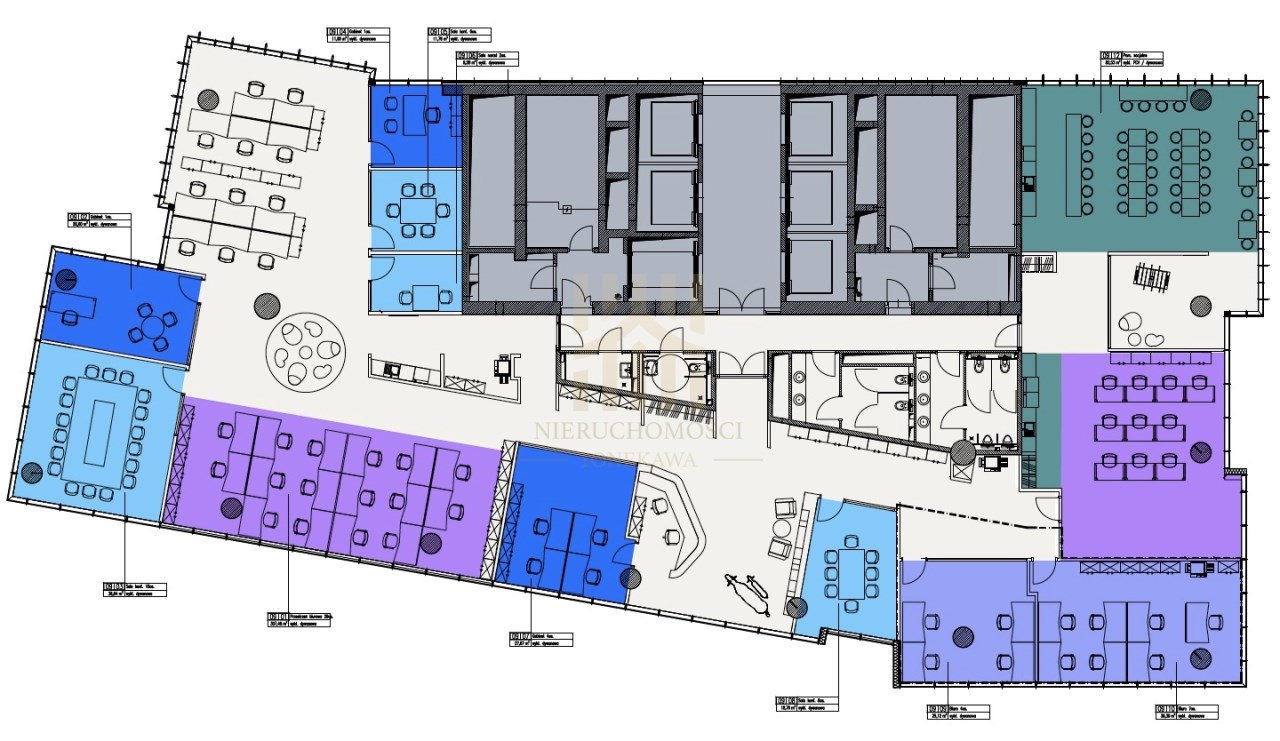
  • podział powierzchni jak na rzucie – możliwe zmiany w układzie
Warunki najmu:
  • czynsz 15,00 EUR/mkw + opłata eksploatacyjna
  • media według zużycia i wskazań liczników
Zapraszam po więcej szczegółów oraz na prezentację obiektu w dogodnym terminie.
Podane w zestawieniu stawki czynszu nie stanowią oferty, są jedynie propozycją cenową.
Oferta dedykowana pod potrzeby najemcy przygotowywana indywidualnie.

OBSŁUGA BEZPROWIZYJNA
WSPIERAM TRÓJMIEJSKICH PRZEDSIĘBIORCÓW W WYBORZE, ANALIZIE ORAZ NEGOCJACJACH WARUNKÓW NAJMU NIERUCHOMOŚCI KOMERCYJNYCH OD 2015 ROKU. DOSTARCZĘ OPTYMALNE ROZWIĄZANIE DLA KAŻDEGO BIZNESU DOSTOSOWANE DO INDYWIDUALNYCH POTRZEB. ELASTYCZNE ROZWIĄZANIA ORAZ TRADYCYJNY TERMINOWY NAJEM W KAMERALNYCH OBIEKTACH I PARKACH BIZNESOWYCH/LOGISTYCZNYCH.

PROJEKTY PRZESTRZENNE / WYPOSAŻENIE BIUROWE / DOSTOSOWANIE UKŁADU / ZMIANA LOKALIZACJI

  • Symbol oferty: YON-LW-826
  • Powierzchnia: 883,80 m²
  • Powierzchnia użytkowa [m2]: 883,80 m²
  • Rodzaj budynku: biurowiec
  • Standard:
  • Opłaty wg liczników: woda, CO, prąd
  • Piętro: 12
  • Liczba pięter w budynku: 19
  • Stan lokalu: do odświeżenia
  • Okna: aluminiowe
  • Instalacje: dobre
  • Rok budowy: 2014
  • Rodzaj lokalu: jednopoziomowy
  • Przeznaczenie lokalu: biurowy
  • Gaz:
  • Dojazd: asfalt
  • Ogrzewanie: pompa ciepła
  • Odległość do komunikacji publicznej [m]: 200 m
  • Winda: tak
  • Liczba wind: 4
  • Usytuowanie: wielostronne
  • Przystosowania dla niepełnosprawnych: tak
  • Możliwość parkowania: tak
  • Własny parking: tak
  • Podłogi: wykładzina

Masz pytania

agent
Filip Chrzanowski Dyrektor Działu Nieruchomości Komercyjnych
Nota prawna

Opis oferty zawarty na stronie internetowej sporządzany jest na podstawie oględzin nieruchomości oraz informacji uzyskanych od właściciela, może podlegać aktualizacji i nie stanowi oferty określonej w art. 66 i następnych K.C

heading iconPodobne oferty

heading iconKontakt

Proszę wypełnić to pole
Proszę wypełnić to pole
Proszę wypełnić to pole
Proszę wypełnić to pole